Продажа Квартир
3 790 000
 

Рублей

Возможен торг

Псков, Инженерная улица, д.108/62

Продажа Квартир в Псковской области
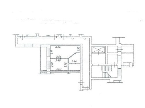
S общ
34.8
м2
S жил
17
м2
S кух
10
м2
Этаж: 1  
Этажей: 10

Количество комнат: 1

Балкон: Есть лоджия
Тип дома: Кирпичный
Сан. узел: Совмещенный
Вид из окон: Во двор
Напольное покрытие: Ламинат
Кредит: Ипотека
Состояние: Косм. ремонт

Дополнительно: мебель, интернет, лифт, прямая продажа


Продается просторная однокомнатная квартира, расположенная на первом этаже в кирпичном доме 2015 года постройки. Продуманная планировка квартиры с просторной кухней 10 кв. м с выходом на двойную застекленную лоджию, комната площадью 17 кв. м. Общая площадь квартиры 39 кв. метров с учетом застекленной лоджии. Квартира полностью готова к проживанию, сделана качественная, современная отделка. Квартира продается полностью оборудованной встроенной мебелью, готовый вариант заехать и жить без лишних вложений. Дом расположен в стремительно развивающемся районе города, при этом уютный район. В районе располагаются крупные торговые центры, магазины торговых сетей, продуктовые магазины, строительные магазины, отделения Сбербанка, аптеки, рынок, рестораны, бары, спортивные и развлекательные заведения для детей и взрослых. Социальные объекты: школы, новые детские сады. Документы готовы к продаже. Любой вид оплаты, в том числе с использованием ипотеки, материнского капитала, субсидии или сертификата.



Напечатать объявление Пожаловаться на объект Искать похожие на novoespb.ru
-->
События рынка
Яна Гусева поделится секретами переговорного мастерства с риелторами Санкт-Петербурга

Всех, кому интересно повысить квалификацию в сфере психологии, приглашают на тренинг на тему «Психология влияния в риэлторских переговорах».

VI биеннале «Архитектура Петербурга»

Российская гильдия управляющих и девелоперов приглашает принять участие в VI ежегодном биеннале «Архитектура Петербурга», которое пройдет 18-24 апреля в Мраморном зале Российского этнографического музея.

Зеркало рынка и Ярмарка тщеславия

С первых дней своего существования Петербургская Ярмарка недвижимости стала зеркалом рынка, точно отражающим как общую ситуацию, так и наиболее яркие тенденции в каждом, представленном на выставке сегменте. Не стала исключением и Ярмарка, прошедшая в Экспофоруме с 28 по 30 октября 2016 года.

Чтобы купить недвижимость выгодно и надежно

Уже завтра, в пятницу, 28 октября в Экспофоруме откроется большая Ярмарка недвижимости, где более 300 компаний представят городскую, загородную, зарубежную и курортную недвижимость, технологии и материалы для загородного строительства.

Честные выборы на загородном рынке

28 – 30 октября в ЭкспоФоруме пройдет большая Ярмарка недвижимости. 300 компаний соберутся на одной площадке, чтобы представить городскую, загородную, зарубежную недвижимость, технологии и материалы для загородного домостроения.

Аналитика
Объем предложения мест в коворкингах Петербурга увеличился на 12% с января

По данным Maris, по итогам первого квартала 2022 года в Петербурге на 11,7% увеличился объем предложения в коворкингах, плюс 930 рабочих мест. Сейчас в городе открыт 81 коворкинг.

Покупка недвижимости в лизинг: чем это грозит?

Нестабильность отечественной экономики привела к снижению инвестиционной привлекательности рынка недвижимости. Эксперты говорят о растущих рисках, связанных с приобретением

К пожизненной ренте подключилось государство

С 1 января 2015 года вступает в силу закон Петербурга «О финансировании расходов, связанных с заключением договоров пожизненной ренты». Документ предусматривает возможность

Основания выдачи пакетов из ячейки при не совершении сделки

Когда покупатели, продавцы, их агенты обращаются в Расчётный центр, то, как правило, все подготовительные работы по заключению сделки уже проведены. Воодушевлённые предстоящей

Что делать, если банк – банкрот, а в сейфовой ячейке находятся деньги?

«Неустойчивое положение банков в череде продолжающихся отзывов лицензий вызывают у пользователей банковских ячеек единственный вопрос: как получить содержимое ячейки, если

-->

В базе недвижимости Санкт-Петербурга и Ленинградской области содержится информация об объектах недвижимости. Наша база постоянно пополняется новыми объявлениями об аренде и продаже квартир в новостройках, офисов и прочих объектах коммерческой недвижимости, а так же вторичной недвижимости в Санкт-Петербурге. Удобная система поиска позволяет осуществлять подбор нужного объекта по району, станции метро, стоимости и многим другим параметрам, в том числе по рекламодателю — агентству недвижимости или застройщику.