м2
Пожалуйста, сообщите продавцу, что вы нашли это объявление на сайте EIP.ru.
№ объявления: 41432162
Напечатать объявление Пожаловаться на объект Искать похожие на glavkomspb.ru
Всех, кому интересно повысить квалификацию в сфере психологии, приглашают на тренинг на тему «Психология влияния в риэлторских переговорах».
Российская гильдия управляющих и девелоперов приглашает принять участие в VI ежегодном биеннале «Архитектура Петербурга», которое пройдет 18-24 апреля в Мраморном зале Российского этнографического музея.
С первых дней своего существования Петербургская Ярмарка недвижимости стала зеркалом рынка, точно отражающим как общую ситуацию, так и наиболее яркие тенденции в каждом, представленном на выставке сегменте. Не стала исключением и Ярмарка, прошедшая в Экспофоруме с 28 по 30 октября 2016 года.
Уже завтра, в пятницу, 28 октября в Экспофоруме откроется большая Ярмарка недвижимости, где более 300 компаний представят городскую, загородную, зарубежную и курортную недвижимость, технологии и материалы для загородного строительства.
28 – 30 октября в ЭкспоФоруме пройдет большая Ярмарка недвижимости. 300 компаний соберутся на одной площадке, чтобы представить городскую, загородную, зарубежную недвижимость, технологии и материалы для загородного домостроения.
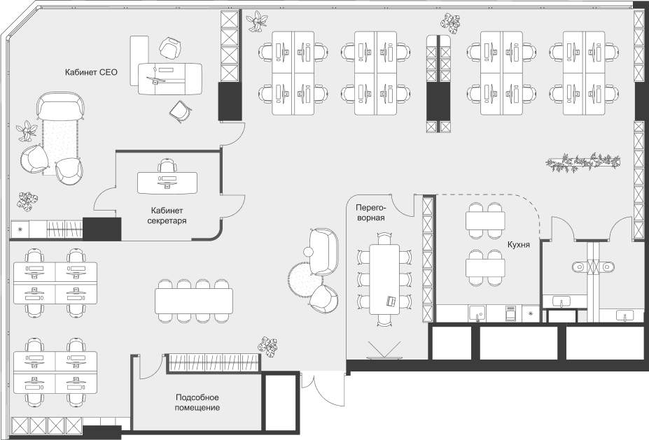
По данным Maris, по итогам первого квартала 2022 года в Петербурге на 11,7% увеличился объем предложения в коворкингах, плюс 930 рабочих мест. Сейчас в городе открыт 81 коворкинг.
Нестабильность отечественной экономики привела к снижению инвестиционной привлекательности рынка недвижимости. Эксперты говорят о растущих рисках, связанных с приобретением
С 1 января 2015 года вступает в силу закон Петербурга «О финансировании расходов, связанных с заключением договоров пожизненной ренты». Документ предусматривает возможность
Когда покупатели, продавцы, их агенты обращаются в Расчётный центр, то, как правило, все подготовительные работы по заключению сделки уже проведены. Воодушевлённые предстоящей
«Неустойчивое положение банков в череде продолжающихся отзывов лицензий вызывают у пользователей банковских ячеек единственный вопрос: как получить содержимое ячейки, если
В базе недвижимости Санкт-Петербурга и Ленинградской области содержится информация об объектах недвижимости. Наша база постоянно пополняется новыми объявлениями об аренде и продаже квартир в новостройках, офисов и прочих объектах коммерческой недвижимости, а так же вторичной недвижимости в Санкт-Петербурге. Удобная система поиска позволяет осуществлять подбор нужного объекта по району, станции метро, стоимости и многим другим параметрам, в том числе по рекламодателю — агентству недвижимости или застройщику.






